Swarzewska

Klient: TBS Bydgoszcz
Nazwa projektu: Budynek mieszkalny wielorodzinny
Lokalizacja: Bydgoszcz, Polska
Projekt: 2018
Status: projekt koncepcyjny

 

Powierzchnia terenu: 5 076,86 mkw (100%)
Powierzchnia zabudowy: 1 460,67 mkw (28,77%)
Powierzchnia biologicznie czynna: 1 931,60 mkw (38,04%)
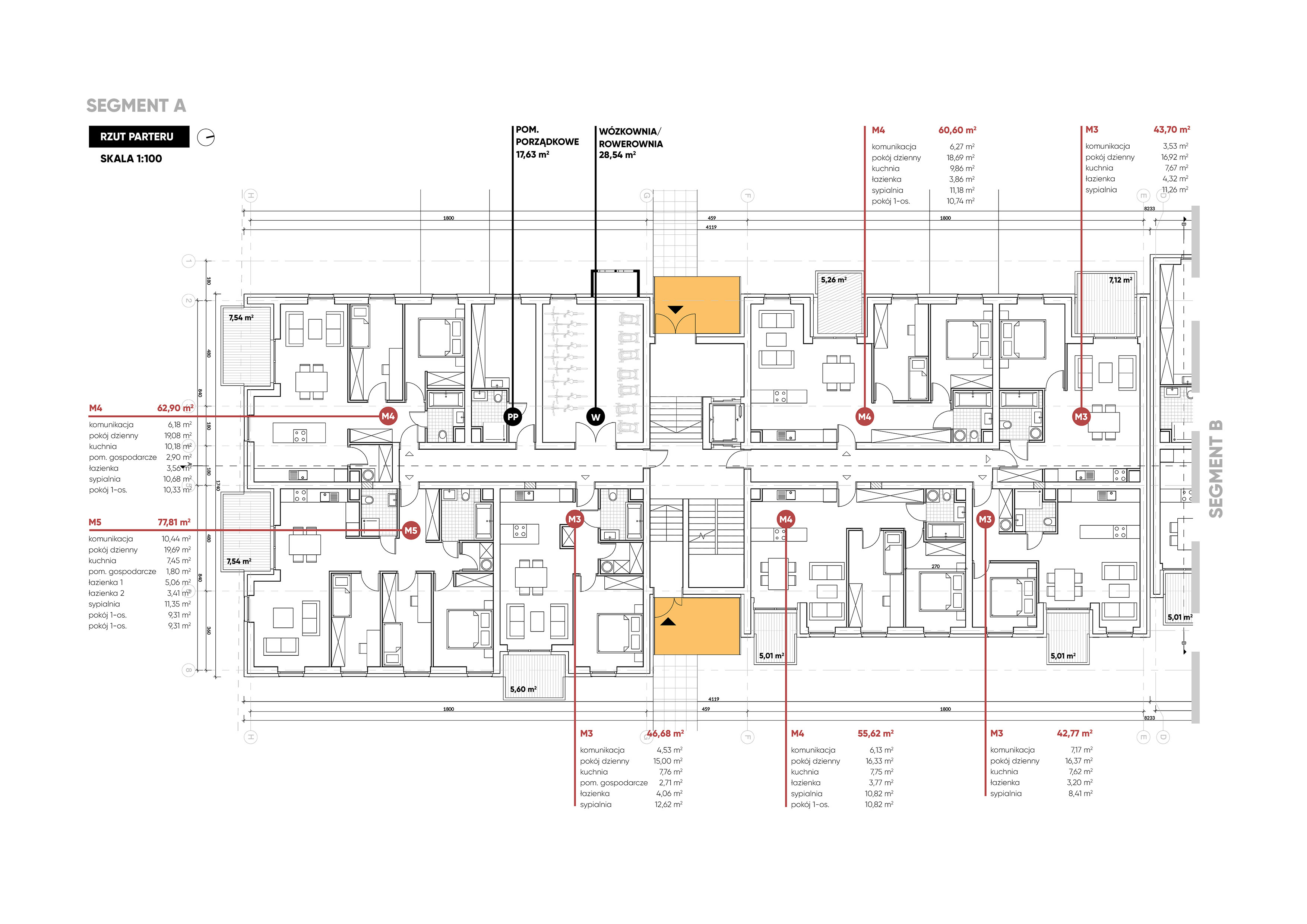
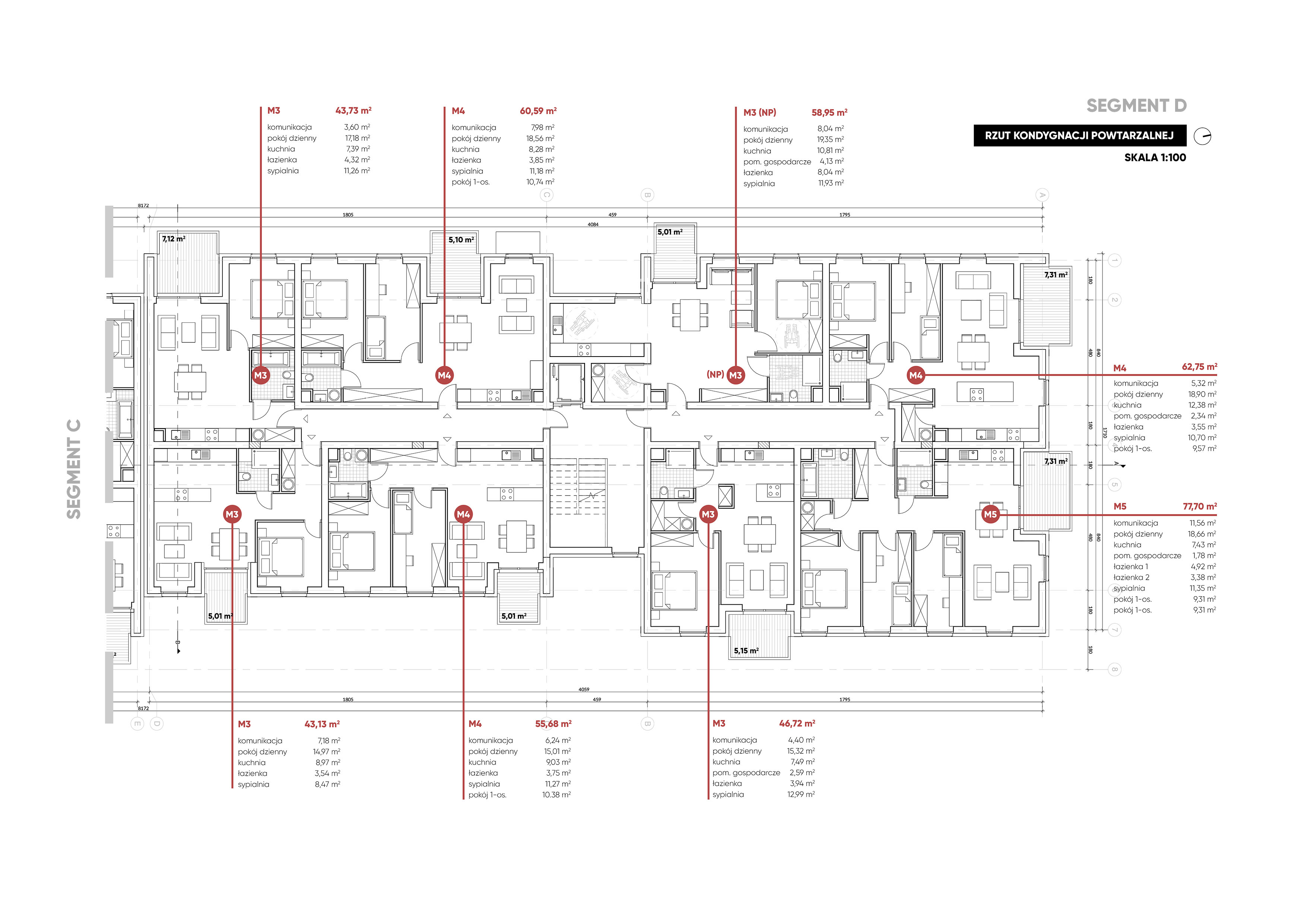
Ilość mieszkań: 78
Ilość miejsc parkingowych: 78
PUM: 4 577,59 mkw
PUM/PU: 0,86

Działka, na której zlokalizowana jest zabudowa znajduje się w Bydgoszczy, przy ul. Swarzewskiej. W sąsiedztwie znajduje się zespół zabudowy mieszkaniowej o zróżnicowanej strukturze. Długie pasy bloków mieszkalnych od północy oraz punktowa zabudowa od południa wyznaczyły kierunek w kształtowaniu zabudowy mieszkaniowej.

Poszanowanie kontekstu urbanistycznego odbywa się przez zaprojektowanie podłużnej bryły z jednoczesnym podziałem jej na cztery segmenty. Charakterystycznym detalem zaprojektowanym dla zespołu są ramowe strefy wejściowe w kontrastowych kolorach. Proste i rytmiczne podziały okienne zostały przełamane mijankową zasadą kształtowania loggii.

To wszystko w połączeniu ze stonowaną kolorystyką oraz spójną architekturą pozwoliło stworzyć projekt budynku mieszkalnego, który wpisując się w kontekst otoczenia może stać się ciekawym przykładem budownictwa społecznego w Bydgoszczy.

poprzedni projekt